Проект 50H

  • • Загальна площа (з верандами та балконами): 186 м2
  • • Площа приміщень: 166 м2
  • • Поверхів: 2
  • • Термін будівництва: 6-7 місяців
    (час будівництва стінового комплекту)


ПЛАН ПЕРШОГО ПОВЕРХУ

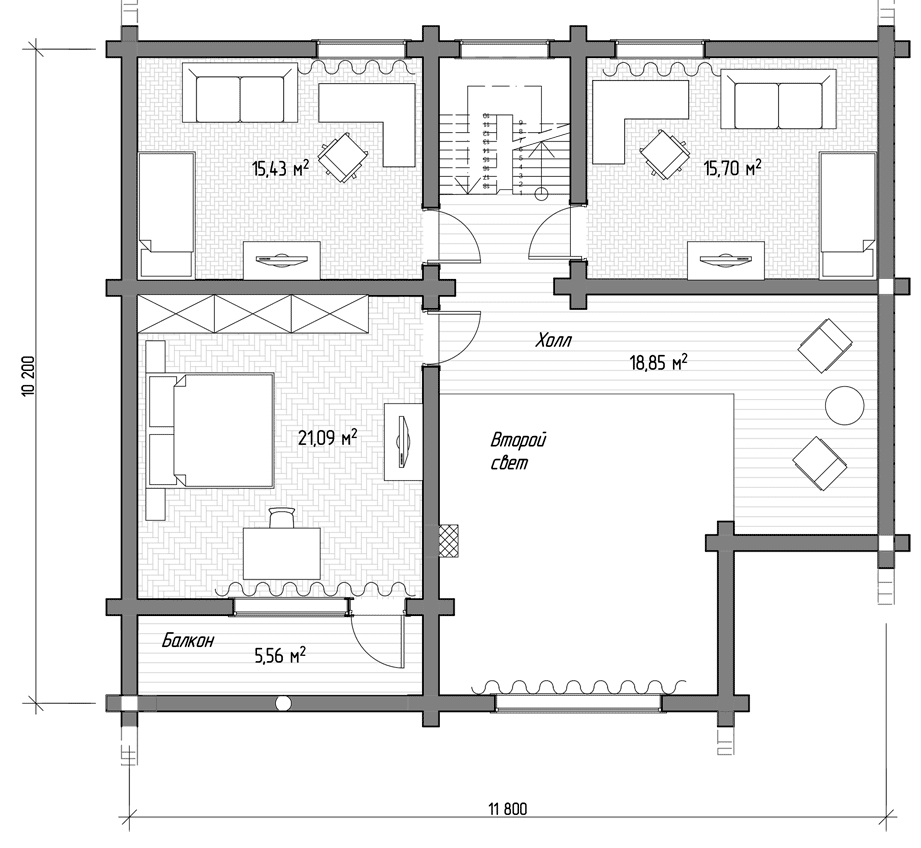
ПЛАН ДРУГОГО ПОВЕРХУ

Комплектація

Процес будівництва з дерева відбувається у 2 етапи:

1.Безпосередньо сам зруб (стіновий комплект)

• Зруб котеджу або лазні зі струганої колоди діаметром від 260 мм до 320 мм.
• Силові конструкції: лаги, стельові балки.
• Виготовлення кроквяної системи
• Монтаж обрешітки
• Лаги, крокви, нижні вінці зрубу покриваються антисептиком.
• Вінці збираються на дерев'яних нагелях, між вінцями прокладається мох

2. Інші роботи по зрубу

• Часткове шліфування стін зрубу.
• Чистова підлога, стеля.
• Встановлення вікон, дверей зрубу.
• Пристрій між поверхових сходів зрубу.
• Фарбування зрубу (стіни, підлога, стеля).
• Сантехніка
• Електрика

БЕЗКОШТОВНА КОНСУЛЬТАЦІЯ

Проект 50H: Дерев’яний будинок із бруса ручної рубки на 186 м² під ключ

Будинки із бруса ручної рубки – це еталон натуральності, екологічності та естетики. Кожна колода в таких будинках проходить обробку вручну, що забезпечує максимальну точність і збереження природної текстури дерева. У процесі будівництва використовується деревина високої якості, зазвичай сосна, модрина або дуб. Ці матеріали мають унікальні теплоізоляційні властивості, що робить дерев’яні будинки ідеальним варіантом для комфортного життя в будь-який сезон. Проект 50H від Ecobud – це зразок сучасного підходу до будівництва будинків із бруса, які поєднують у собі традиційні технології ручної рубки та сучасні стандарти будівництва. Загальна площа 186 м² дозволяє використовувати такий будинок як для сезонного відпочинку, так і для постійного проживання. Ключові переваги будинків із бруса ручної рубки:
  • Екологічність. Деревина – це природний матеріал, який створює здоровий мікроклімат у приміщенні.
  • Естетичність. Кожна колода унікальна, а ручна обробка дозволяє зберегти її природну красу.
  • Теплоізоляція. Будинки із дерева зберігають тепло взимку та прохолоду влітку, що значно скорочує витрати на опалення та кондиціонування.
  • Тривалість експлуатації. Завдяки правильній обробці деревини будинки із бруса можуть служити десятиліттями.

Як відбувається будівництво будинку із бруса ручної рубки?

Будівництво дерев’яного будинку ручної рубки включає кілька етапів, кожен із яких має свої особливості та вимагає уваги до деталей. Спочатку обирають деревину потрібного діаметра (від 260 до 320 мм), яка проходить антисептичну обробку. Далі майстри вручну обробляють кожну колоду, забезпечуючи ідеальне прилягання до сусідніх елементів. Колоди збираються на дерев’яних нагелях із використанням природних ущільнювачів, наприклад, моху. Ручна рубка гарантує, що кожна деталь будинку має високу якість. Ця технологія забезпечує довговічність будівлі та її унікальний зовнішній вигляд. Процес займає більше часу порівняно з машинною обробкою, але результат повністю виправдовує витрати.

Етап 1: Проектування будинку із бруса

Перший і найважливіший етап — це створення детального проекту майбутнього будинку. У проекті враховуються всі побажання замовника: від планування кімнат до архітектурного стилю. Проект 51H передбачає будинок із бруса ручної рубки площею 186 м², ідеальний для постійного проживання або відпочинку. У процесі проектування враховуються теплоізоляційні властивості деревини, що забезпечує комфорт у будь-який сезон. Ви можете замовити дерев’яний будинок на замовлення, адаптований під ваші потреби. Для проекту 51H використовуються екологічні матеріали, такі як сосна, модрина або дуб. Ці породи дерева забезпечують високу довговічність конструкції. Якщо ви хочете замовити будинок із бруса під ключ, важливо приділити особливу увагу вибору якісних матеріалів та професіоналізму виконавців.

Етап 2: Підготовка ділянки

Перед початком будівництва проводиться підготовка ділянки. Це включає:
  • Очищення території від сміття та зайвих насаджень.
  • Вирівнювання ґрунту.
  • Облаштування фундаменту.
Фундамент — це основа будь-якого будинку, особливо для дерев’яної конструкції. Під час його закладки враховуються розміри майбутньої будівлі, тип ґрунту та кліматичні умови. Надійний фундамент забезпечує довговічність будинку з дерева під ключ.

Етап 3: Заготівля та обробка деревини

На цьому етапі відбувається вибір колод діаметром від 260 до 320 мм. Колоди проходять ретельну обробку: сушіння та антисептичне покриття. Ці процедури необхідні для запобігання утворенню грибка та шкідників. Ручна рубка колоди забезпечує ідеальне прилягання кожного елемента. Завдяки цьому будинок із бруса ручної рубки стає не тільки міцним, але й естетично привабливим. Замовити проект будинку з бруса можна, вибравши індивідуальні параметри: кількість кімнат, тип покрівлі та внутрішнє оздоблення.

Етап 4: Будівництво зрубу

Основний етап — зведення каркаса будинку. Зруби з колоди ручної рубки будуються із застосуванням натуральних ущільнювачів, таких як мох або джут. Це забезпечує теплоізоляцію та герметичність конструкції. На цьому етапі:
  • Колоди збираються за технологією дерев’яних нагелів.
  • Укладається утеплювач між вінцями.
  • Встановлюється кроквяна система та покрівля.
Матеріали для даху обираються залежно від уподобань замовника. Найчастіше це металочерепиця або натуральна черепиця, що гармонійно поєднується з дерев’яною конструкцією.

Етап 5: Монтаж комунікацій

Будинок із бруса під ключ з комунікаціями — це комфорт і зручність. Інженерні системи включають:
  • Опалення: встановлення сучасних систем, що забезпечують тепло навіть узимку.
  • Водопостачання та каналізація: автономні системи для незалежності від центральних мереж.
  • Електропроводка: монтаж із дотриманням норм безпеки.
Будівництво будинків із дерева передбачає використання сучасних технологій, що гарантує надійність і довговічність комунікацій.

Етап 6: Внутрішнє оздоблення

Внутрішнє оздоблення спрямоване на підкреслення природної краси дерев’яної структури. Стіни шліфуються та покриваються захисними лаками. У будинках із дерева під ключ використовуються екологічні матеріали для підлог, вікон та дверей. Усе оздоблення робиться так, щоб створити затишну та природну атмосферу.

Етап 7: Здача будинку під ключ

Після завершення всіх робіт проводиться повна перевірка якості. Замовити будинок із бруса під ключ — означає отримати готове житло, повністю підготовлене для проживання. Будинок за проектом 51H ідеально підходить для тих, хто цінує екологічність, естетику та комфорт. Завдяки ручній рубці та використанню натуральних матеріалів, кожен будинок стає унікальним. Замовити дерев’яний будинок нможна в компанії Ecobud, яка спеціалізується на виготовленні будинків із бруса. Проект будинку 51H — це ідеальне рішення для тих, хто хоче побудувати дерев’яний будинок під ключ, який відповідатиме всім вашим потребам.