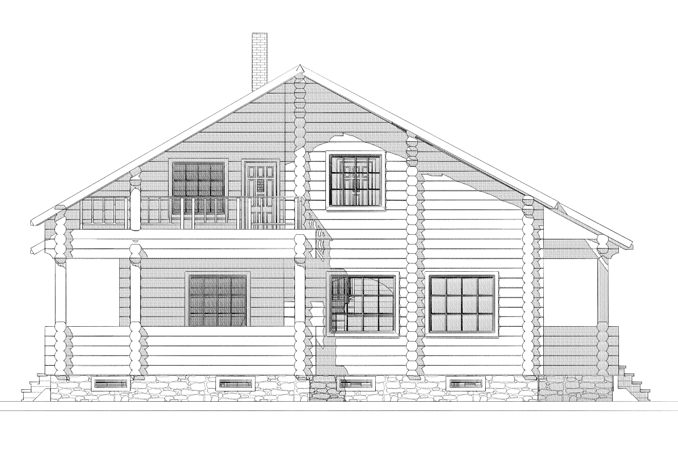
Проект 52H

  • • Загальна площа (з верандами та балконами): 225 м2
  • • Площа приміщень: 175 м2
  • • Поверхів: 2
  • • Термін будівництва: 6-7 місяців
    (час будівництва стінового комплекту)


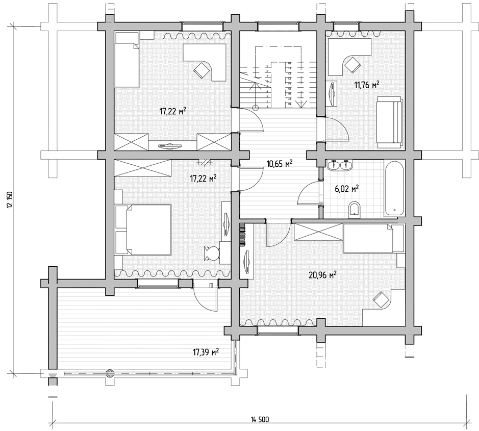
ПЛАН ПЕРШОГО ПОВЕРХУ

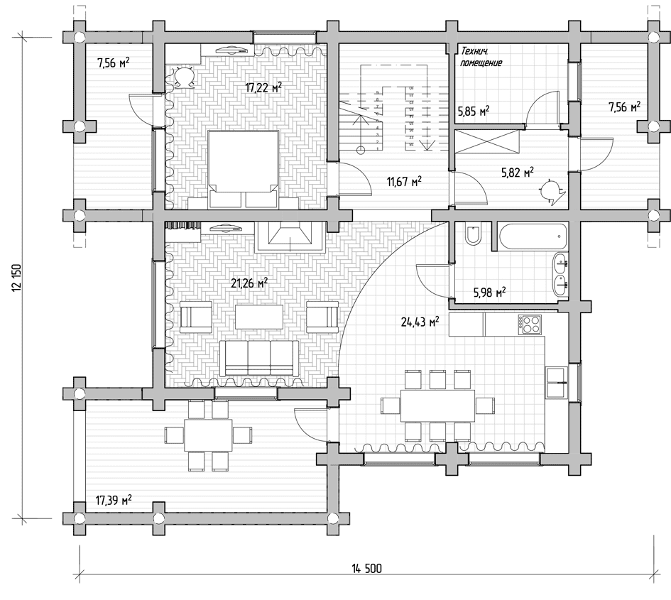
ПЛАН ДРУГОГО ПОВЕРХУ

Комплектація

Процес будівництва з дерева відбувається у 2 етапи:

1.Безпосередньо сам зруб (стіновий комплект)

• Зруб котеджу або лазні зі струганої колоди діаметром від 260 мм до 320 мм.
• Силові конструкції: лаги, стельові балки.
• Виготовлення кроквяної системи
• Монтаж обрешітки
• Лаги, крокви, нижні вінці зрубу покриваються антисептиком.
• Вінці збираються на дерев'яних нагелях, між вінцями прокладається мох

2. Інші роботи по зрубу

• Часткове шліфування стін зрубу.
• Чистова підлога, стеля.
• Встановлення вікон, дверей зрубу.
• Пристрій між поверхових сходів зрубу.
• Фарбування зрубу (стіни, підлога, стеля).
• Сантехніка
• Електрика

БЕЗКОШТОВНА КОНСУЛЬТАЦІЯ

Проект 52H: Будівництво дерев’яних будинків із бруса під ключ від компанії Ecobud

Проект 52H є ідеальним рішенням для тих, хто мріє про дерев’яний будинок з високою якістю будівництва та комфортними умовами для життя. В рамках цього проекту компанія Ecobud пропонує будівництво будинків із бруса площею 225 м², включаючи зруб, встановлення вікон та дверей, монтаж електрики та сантехніки, а також оздоблення. Весь процес будівництва від початку до кінця включає декілька ключових етапів, що дозволяє гарантувати високу якість роботи та створення затишного будинку для вашої родини..

Загальні характеристики та переваги проекту 52H

Проект 52H – це не просто стандартний будинок з дерева, це ідеальний варіант для тих, хто шукає дерев’яний будинок на замовлення з урахуванням сучасних потреб. Будинок площею 225 м², включаючи веранду та балкони, ідеально підійде для сім’ї, забезпечуючи комфорт та функціональність.. Основні характеристики проекту:
  • Загальна площа будинку з верандами та балконами: 225 м²
  • Площа приміщень (житлові та загальні площі): 175 м²
  • Кількість поверхів: 2
  • Термін будівництва: 6-7 місяців (включаючи будівництво стінового комплекту))
Будинок із бруса з такими характеристиками є відмінним вибором для людей, які хочуть створити затишну та довговічну оселю, яку можна облаштувати під будь-які потреби..

Будівництво будинку з бруса: етапи та особливості

Будівництво дерев’яного будинку за проектом 51H від компанії Ecobud передбачає два основні етапи, кожен з яких виконується з дотриманням високих стандартів якості та професіоналізму. Всі етапи спрямовані на те, щоб створити не просто будинок, а справжній дерев’яний будинок під ключ, який буде готовий до комфортної життя зі всіма необхідними комунікаціями. Проект 51H — це ідеальний варіант для тих, хто шукає будинок з дерева під ключ, де кожен етап будівництва проходить бездоганно, а якість кожної деталі перевірена. Отже, давайте детальніше розглянемо, з чого складається процес будівництва цього дерев’яного будинку на замовлення.

Будівництво зрубу

Перше, що потрібно зробити при будівництві дерев’яного будинку, це створення основи, а саме зрубу. Будинок із бруса починається з виготовлення каркасу, який є основою для всіх подальших етапів будівництва. Використовуються строгані колоди діаметром від 260 до 320 мм, що гарантує стійкість конструкції та довговічність вашого дерев’яного будинку.. Основні моменти, на які ми звертаємо увагу під час будівництва зрубу:
  • Використання струганого бруса для забезпечення високої точності та довговічності стін.
  • Дерев’яні нагелі для з’єднання венців, що дозволяє забезпечити герметичність і стійкість конструкції.
  • Прокладання моху між вінцями для покращення тепло- та звукоізоляції.
  • Антисептична обробка нижніх вінців, лаг та крокв для захисту від впливу вологи та інших зовнішніх факторів, що продовжує термін служби будинку.
Після завершення створення зрубу на наступному етапі ми переходимо до виконання внутрішніх робіт і встановлення комунікацій.

Внутрішні роботи та встановлення комунікацій

Після того, як зруб готовий, команда Ecobud приступає до внутрішнього оздоблення та встановлення всіх необхідних комунікацій. Це важливий етап, під час якого ми враховуємо всі потреби наших клієнтів для того, щоб побудувати будинок під ключ з комунікаціями, готовий для комфортного проживання.. Етапи цього процесу включають:
  • Шліфування стін зрубу для того, щоб підкреслити натуральну текстуру дерева та створити естетичний вигляд стін..
  • Встановлення вікон і дверей — важливий етап, оскільки вікна і двері не тільки визначають зовнішній вигляд будинку, а й забезпечують тепло- та шумоізоляцію..
  • Монтаж міжповерхової сходи, що робить переміщення по будинку комфортним та зручним..
  • Фарбування всього зрубу, в тому числі стін, підлоги та стелі, що додає будинку красивого вигляду і забезпечує захист від природних умов..
  • Монтаж електрики, водопостачання та каналізації для того, щоб будинок був повністю обладнаний для комфортного життя..
Цей комплексний підхід дозволяє отримати дерев’яний будинок на замовлення з готовими комунікаціями, що відповідають найвищим стандартам. Завдяки професіоналізму наших фахівців, процес будівництва від початку до кінця проходить без затримок, що дозволяє реалізувати проект будинку з дерева під ключ у найкоротші терміни.

Виготовлення дерев’яних будинків за індивідуальними проектами

Проект 51H – це не просто стандартний проект, а можливість для кожного замовника замовити будинок із бруса на замовлення. Ви можете адаптувати план до своїх особистих потреб, вибрати кількість кімнат, їх розташування та площу. Це чудова можливість побудувати саме той дерев’яний будинок, про який ви мріяли, не турбуючись про стандартні розміри чи варіанти. Завдяки нашому каталогу будинків із бруса, кожен клієнт може вибрати варіант, який відповідає його вимогам, або ж замовити проект будинку з дерева під ключ, що дозволяє вам створити унікальне житло, яке відповідає всім вашим вимогам..

Виготовлення та встановлення комунікацій

Будівництво будинків з дерева не обмежується лише зведенням стін та покрівлі. Після того, як основна конструкція будинку готова, наші фахівці приступають до монтажу всіх необхідних комунікацій. Це включає в себе:
  • Електричні проводки та розетки, щоб ваш будинок був оснащений сучасними системами енергозабезпечення.
  • Системи водопостачання та водовідведення, що забезпечують комфортні умови для життя в будинку.
  • Опалення — це може бути пічне або інші сучасні системи, які допомагають підтримувати комфортну температуру в будинку за будь-яких погодних умов..
Після завершення всіх робіт ваш дерев’яний будинок на замовлення буде готовий до прийому перших мешканців..

Ручна рубка та зруб з колоди

Однією з особливостей наших проектів є використання ручної рубки для створення будинків. Це дає можливість отримати на виході будинки з колоди ручної рубки, які відрізняються високою якістю та естетичним виглядом. Такий підхід гарантує точність і довговічність шкірного елемента будинку, що робить його ще більш надежним і стійким до зовнішніх впливів.. Процес рубання будинку з колоди на замовлення дозволяє виготовити зруб з колоди ручної рубки, що ідеально підходить для створення стильного та теплого дерев’яного будинку. Це дає можливість зробити ваш будинок не тільки красивим, але й таким, що відповідає всім вимогам комфорту та довговічності.. Таким чином, будівництво будинків з колоди ручної рубки є важливим етапом у створенні дерев’яного будинку під ключ, що забезпечує не тільки надійність і довговічність, але і природний вигляд вашого будинку..

Що робить проект 52H унікальним?

Проект 52H пропонує будинки з дерева у стилі, який поєднує традиції та сучасні тенденції. Компанія Ecobud використовує колоду ручної рубки, що додає будинку унікальний, природний та неповторний вигляд. Ручна рубка забезпечує додаткову міцність та довговічність, а також зберігає природні властивості деревини, створюючи комфортний мікроклімат у будинку. Крім того, проект передбачає не лише будівництво будинку, а й встановлення всіх необхідних комунікацій — це один із найважливіших аспектів, який робить будинок готовим до проживання одразу після завершення будівництва. Ви отримуєте будинок з дерева під ключ, який готовий до експлуатації без додаткових робіт.

Як замовити будівництво будинку з бруса за проектом 52H?

Якщо ви хочете замовити дерев’яний будинок під ключ, проект 52H – це ідеальний варіант. З нами можна замовити будинок з бруса на замовлення, який повністю відповідатиме вашим побажанням та вимогам. Ми гарантуємо високу якість матеріалів та роботи, а також виконання всіх термінів будівництва. Компанія Ecobud пропонує вам унікальну можливість замовити проект будинку з дерева, який ідеально впишеться у будь-який ландшафт і служитиме вам довгі роки. Ви можете ознайомитися з каталогом будинків із бруса, де представлені різні варіанти будинків, включаючи недорогі будинки з колоди, які відповідають усім сучасним вимогам щодо енергоефективності та комфорту.