Проект 49H

  • • Загальна площа (з верандами та балконами): 186 м2
  • • Площа приміщень: 163 м2
  • • Поверхів: 2
  • • Термін будівництва: 6-7 місяців
    (час будівництва стінового комплекту)


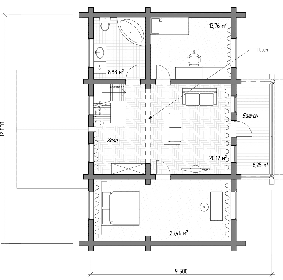
ПЛАН ПЕРШОГО ПОВЕРХУ

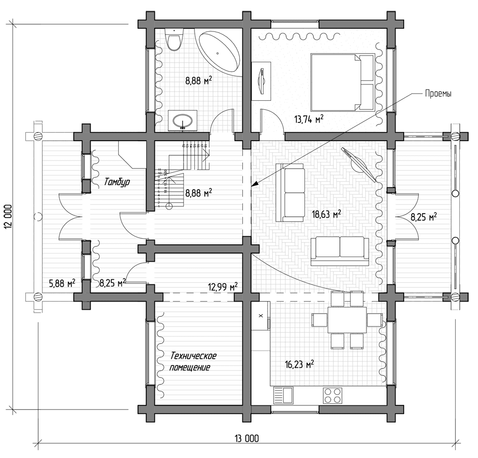
ПЛАН ДРУГОГО ПОВЕРХУ

Комплектація

Процес будівництва з дерева відбувається у 2 етапи:

1.Безпосередньо сам зруб (стіновий комплект)

• Зруб котеджу або лазні зі струганої колоди діаметром від 260 мм до 320 мм.
• Силові конструкції: лаги, стельові балки.
• Виготовлення кроквяної системи
• Монтаж обрешітки
• Лаги, крокви, нижні вінці зрубу покриваються антисептиком.
• Вінці збираються на дерев'яних нагелях, між вінцями прокладається мох

2. Інші роботи по зрубу

• Часткове шліфування стін зрубу.
• Чистова підлога, стеля.
• Встановлення вікон, дверей зрубу.
• Пристрій між поверхових сходів зрубу.
• Фарбування зрубу (стіни, підлога, стеля).
• Сантехніка
• Електрика

БЕЗКОШТОВНА КОНСУЛЬТАЦІЯ

Будівництво дерев'яного будинку 49H під ключ з комунікаціями

Будівництво дерев'яного будинку – це складний процес, що вимагає ретельного планування, використання якісних матеріалів та професійного підходу. Проект 49H від Ecobud є ідеальним варіантом для тих, хто хоче побудувати сучасний будинок із бруса, який поєднує естетичну привабливість із практичністю. З площею 186 м² і ретельно продуманим плануванням, цей дерев'яний будинок стане комфортним простором для життя вашої родини. Нижче ми детально розглянемо ключові етапи будівництва, переваги використання деревини, а також унікальні особливості проекту.

Вибір матеріалів для будинку з бруса

Під час будівництва будинку з дерева основну увагу приділяють вибору якісної деревини. У проекті 49H використовується брус діаметром від 260 мм до 320 мм, який забезпечує довговічність та теплоізоляцію будівлі. Брус проходить попередню обробку антисептиком, що захищає матеріал від грибків, комах і вологи. Це особливо важливо, оскільки дерев'яний будинок має служити десятиліттями.

Зруби ручної рубки додають будівлі автентичності та екологічності. Такі будинки не тільки красиві, але й здатні "дихати", забезпечуючи комфортний мікроклімат у будь-яку пору року. Крім того, обробка стін вручну дозволяє досягти високої якості з'єднань між вінцями, що робить конструкцію максимально міцною.

Етапи будівництва будинку з бруса

Будівництво дерев'яного будинку – це складний, але захоплюючий процес, який включає в себе кілька етапів. Вибір дерев'яного будинку для вашого проживання – це рішення, яке потребує ретельного планування. Будинки з дерева відрізняються своєю екологічністю, теплотехнічними властивостями та естетичним виглядом. Нижче ми детально розглянемо етапи будівництва дерев'яного будинку на замовлення, зокрема будинок із бруса під ключ з комунікаціями, та розглянемо важливі аспекти, які варто враховувати під час зведення будинків з бруса.

Зведення стінового комплекту

Перший етап будівництва дерев'яного будинку є одним із найважливіших. Він передбачає формування основної конструкції будівлі та стінової частини. Для початку здійснюється виготовлення дерев'яних будинків або будинків з бруса за проектом, що був попередньо розроблений і затверджений. Після цього починається процес ручної рубки або рубки будинку з колоди, який є основним для побудови дерев'яних будинків ручної рубки.

Зазвичай для цього використовуються колоди ручної рубки або брус, який проходить спеціальну обробку для забезпечення міцності та довговічності будинку. На цьому етапі дуже важливо, щоб зруб мав правильну геометрію та відповідну щільність, адже це впливає на загальну стабільність конструкції будинку.

Зруб з колоди ручної рубки є одним із найпопулярніших варіантів для створення екологічних, натуральних будинків з дерева. Вибір такої технології дозволяє забезпечити високий рівень теплоізоляції, що робить будинки з дерева під ключ ідеальними для будь-якої пори року. Будинок із бруса або дерев'яний будинок на замовлення не тільки екологічно чистий, але й володіє низькою теплопровідністю, що дозволяє економити на опаленні.

Під час зведення стінового комплекту важливо також враховувати такі аспекти, як якість з'єднань між вінцями та надійність герметизації. У цьому процесі застосовуються дерев'яні нагелі, що забезпечують стійкість та міцність конструкції.

Інженерні та оздоблювальні роботи

Другий етап будівництва дерев'яного будинку є не менш важливим, ніж перший, адже саме на цьому етапі формується готовий для проживання будинок із усіма необхідними комунікаціями. Після того, як зруб будинку завершено, починаються інженерні роботи, які включають в себе прокладання всіх необхідних комунікацій: електрики, сантехніки, водопостачання та опалення. Будинок із бруса під ключ з комунікаціями забезпечує максимальний комфорт для проживання, адже всі системи вже готові до експлуатації.

Після встановлення інженерних систем приходить черга оздоблювальних робіт, таких як монтаж вікон, дверей, міжповерхових сходів. Важливим аспектом є шліфування стін для досягнення гладкої поверхні, на яку потім наноситься лак або фарба. Це дозволяє зберегти природну текстуру дерева, а також захистити поверхню від впливу зовнішніх факторів.

Процес оздоблення дерев'яних будинків потребує точності і уваги до деталей, адже правильне фарбування дерев'яних поверхонь не тільки покращує зовнішній вигляд будинку, але й забезпечує його довговічність. Фінішне покриття забезпечує захист від вологи, що дозволяє дерев'яним будиночкам під ключ служити довгі роки без необхідності в серйозному ремонті.

У випадку, коли йдеться про будинок із бруса на замовлення, замовник має можливість вибрати матеріали та дизайн оздоблення згідно з особистими перевагами. Це може бути як класичний стиль, так і сучасний мінімалізм. Таким чином, замовити будинок із бруса під ключ не лише дозволяє отримати комфортний та функціональний будинок, а й враховує всі естетичні побажання власника.

Підготовка території та завершення будівництва

Останнім етапом будівництва є завершення всіх робіт та підготовка території навколо будинку. Це включає в себе облаштування подвір'я, встановлення огорожі, доріжок, а також ландшафтне оформлення території. На цьому етапі будинок отримує останні штрихи, що робить його не лише комфортним для проживання, а й красивим.

Завершення будівництва включає здачу об'єкта замовнику, що дозволяє йому врешті-решт насолоджуватися своїм новим будинком. Будинок із бруса недорого – це можливість отримати будівлю високої якості за доступною ціною, що не впливає на комфорт проживання. Ви можете також замовити проект будинку з бруса або проект приватного будинку з бруса, враховуючи ваші побажання щодо розмірів та зовнішнього вигляду.

Переваги дерев'яного будинку 49H:

  • Екологічність: Використання натурального бруса гарантує безпечність для здоров'я.
  • Теплоізоляція: Дерев'яні будинки зберігають тепло взимку та прохолоду влітку.
  • Довговічність: Завдяки антисептичній обробці матеріал захищений від шкідливих факторів.
  • Швидкість будівництва: Процес зведення будинку триває всього 6-7 місяців.
  • Індивідуальний підхід: Ви можете замовити будинок із бруса на замовлення з урахуванням усіх ваших побажань.

Чому варто замовити дерев'яний будинок під ключ?

Звертаючись до Ecobud, ви отримуєте повний спектр послуг – від проектування до здачі будинку "під ключ". Це означає, що вам не потрібно турбуватися про вибір матеріалів, організацію робіт або узгодження з підрядниками. Усі процеси виконує одна команда професіоналів, що гарантує якість і дотримання термінів.

Дерев'яний будинок під ключ із комунікаціями – це не тільки зручність, але й економія часу. Ви отримуєте готове житло, в якому вже є все необхідне для комфортного життя. Також можливе індивідуальне доопрацювання проекту, що дозволяє адаптувати будинок під ваші потреби.

Будівництво будинку 49H від Ecobud – це інвестиція у комфортне та екологічне житло. Завдяки використанню якісних матеріалів, професійному підходу до роботи та увазі до деталей, ви отримаєте будинок, який служитиме вам і вашій родині протягом багатьох років. Замовити дерев'яний будинок під ключ із комунікаціями – це правильний вибір для тих, хто цінує якість, екологічність і комфорт.