Проект 48H

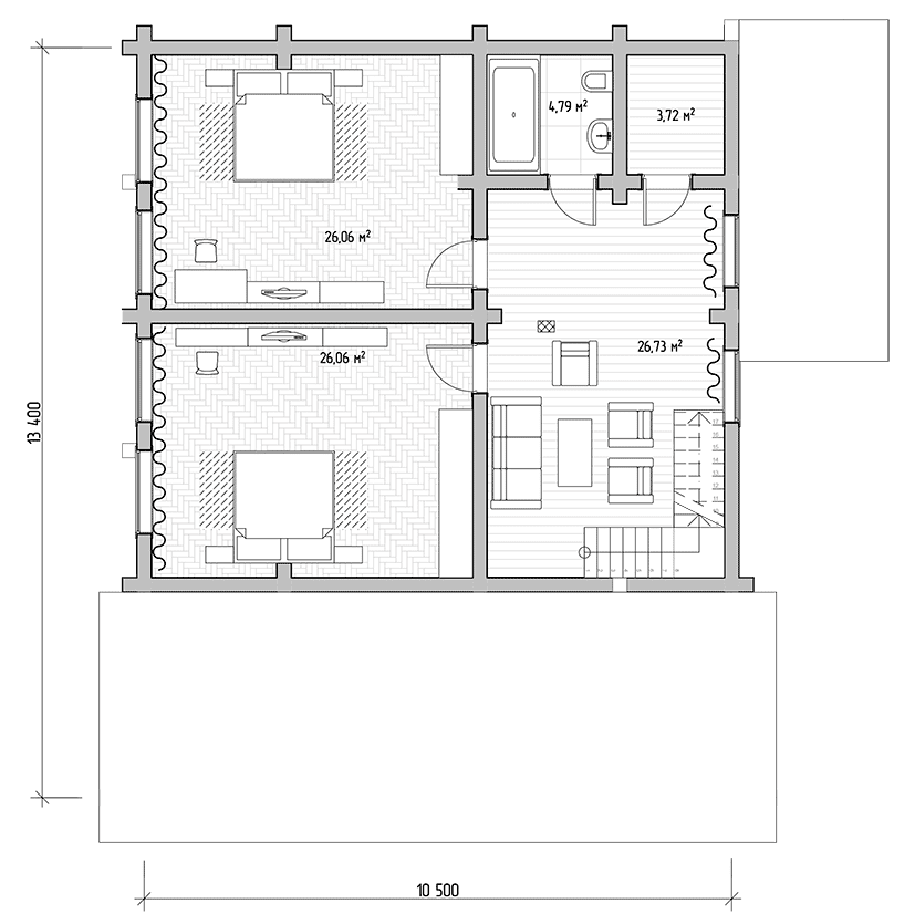
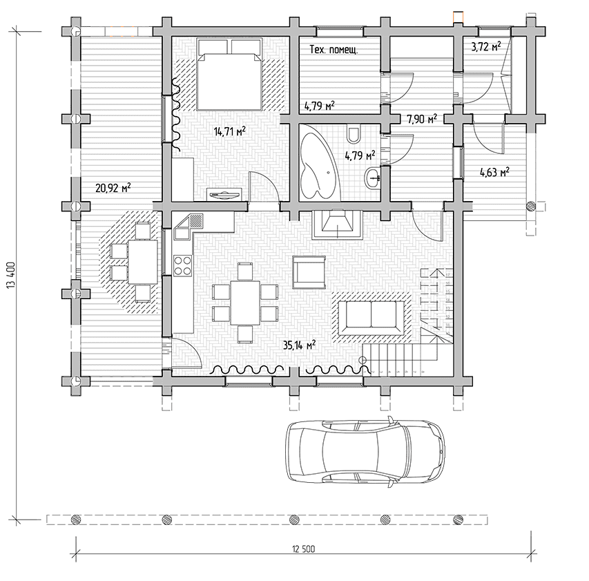
  • • Загальна площа (з верандами та балконами): 183 м2
  • • Площа приміщень: 168 м2
  • • Поверхів: 2
  • • Термін будівництва: 6-7 місяців
    (час будівництва стінового комплекту)


ПЛАН ПЕРШОГО ПОВЕРХУ

ПЛАН ДРУГОГО ПОВЕРХУ

Комплектація

Процес будівництва з дерева відбувається у 2 етапи:

1.Безпосередньо сам зруб (стіновий комплект)

• Зруб котеджу або лазні зі струганої колоди діаметром від 260 мм до 320 мм.
• Силові конструкції: лаги, стельові балки.
• Виготовлення кроквяної системи
• Монтаж обрешітки
• Лаги, крокви, нижні вінці зрубу покриваються антисептиком.
• Вінці збираються на дерев'яних нагелях, між вінцями прокладається мох

2. Інші роботи по зрубу

• Часткове шліфування стін зрубу.
• Чистова підлога, стеля.
• Встановлення вікон, дверей зрубу.
• Пристрій між поверхових сходів зрубу.
• Фарбування зрубу (стіни, підлога, стеля).
• Сантехніка
• Електрика

БЕЗКОШТОВНА КОНСУЛЬТАЦІЯ

Проект 48H: Будівництво дерев'яного будинку із бруса під ключ

Проект 48H – це сучасний двоповерховий дерев'яний будинок із бруса, що поєднує традиційні технології та екологічні переваги дерев'яних конструкцій. Площа будинку складає 183 м168, з яких 48 м є житловими приміщеннями, а інші площі займають веранди і балкони. Будівництво дерев'яного будинку під ключ за проектом XNUMXH дозволить створити комфортне та енергоефективне житло, яке стане затишним місцем для вашої родини на довгі роки.

Особливості проекту 48H

Проект 48H передбачає будівництво дерев’яного будинку з променя, що використовує технологію ручного різання, яка забезпечує максимальну міцність та природну ізоляцію. Загальна площа будинку становить 183 м², з яких 168 м² – житлові приміщення, а решта – веранди та балкони, які дають естетичний тип та функціональність.

  1. Загальна площа: 183 м² (з верандами та балконами).
  2. Жива площа: 168 м².
  3. Кількість поверхів: 2.
  4. Будівництво: 6-7 місяців (термін будівництва стіни).

Використання бруса та колоди ручної рубки забезпечує високу теплоізоляцію та довговічність конструкції. Завдяки такому підходу ваш будинок добре зберігатиме тепло в холодну пору року і залишатиметься прохолодним літом. Крім того, дерев'яні будинки мають чудові вентиляційні властивості, що сприяють створенню здорового мікроклімату.

Переваги будівництва із бруса

Будівництво будинків з дерева під ключ має ряд переваг, що робить цей варіант популярним серед тих, хто шукає екологічне та економічне житло. Ось кілька основних переваг:

  • Екологічність: Дерево – це натуральний матеріал, що забезпечує оптимальний мікроклімат у будинку. Завдяки використанню дерев'яного будинку на замовлення, ви отримуєте екологічно чистий продукт, без шкідливих речовин, які часто містяться в будівельних матеріалах, таких як бетон або пластик.
  • Енергоефективність: Будинки з дерева мають природну теплоізоляцію завдяки волокнистій структурі дерева. Це дозволяє значно знизити витрати на опалення у зимовий період.
  • Міцність та довговічність Будинок із бруса забезпечує стабільність та довговічність. Використання технології ручної рубки при зведенні стін дозволяє створювати конструкції, які витримують значні навантаження та добре пристосовуються до різних погодних умов.
  • Швидкість будівництва Завдяки застосуванню готових стінових комплектів будівництво можна здійснити швидше, ніж при використанні інших матеріалів. Замовити будинок з бруса під ключ дозволяє значно заощадити час та отримати готовий об'єкт для життя вже за кілька місяців.

Комплектація будинку за проектом 48H

Будівництво будинку за проектом 48H передбачає два основні етапи роботи:

Зруб та основні конструкції

На першому етапі будівництва проводиться виготовлення та монтаж зрубу. Це включає виготовлення стінових комплектів з колоди ручної рубки і їх складання.

  • Зруб із бруса виготовляється з матеріалу діаметром від 260 мм до 320 мм, що дає максимальну стійкість та надійність.
  • Силові конструкції: Лаги, крокви та підлогові балки, дахи та перекриттів, що забезпечують міцність та довговічність будівлі.
  • Шліфування та антисептування: Перед складанням всі деталі обробляються антисептиками для захисту від шкідників та вологи, що збільшує термін служби вашого будинку.

Інші роботи

На другому етапі будівництва виконуються наступні роботи:

  • Шліфування стін: Часткове шліфування стін зрубу дозволяє їм надати їм більш естетичний вигляд.
  • Чиста обробка: встановлюються вікна, двері, міжпориста сходи, стіни, підлога та стеля пофарбовані.
  • Встановлення сантехніки та електроенергії, що забезпечують комунікації, такі як водопостачання, каналізація, живлення та опалення, є важливим етапом будівництва дерев’яного будинку під ключ.

Детальний процес побудови дерев'яного будинку згідно проекту 48H.

Будівництво дерев’яного будинку з бару під проектом 48H – це всебічний процес, який включає кілька етапів, від підготовки території до оздоблення та встановлення комунікацій. Давайте детальніше подивимось на кожен етап, щоб ви могли краще зрозуміти, як піде створення вашого майбутнього будинку.

Підготовка сайту та дизайну

Перший етап в будівництві – це підготовка землі. На цьому етапі виконуються наступні твори:

  1. Очищення сайту: видалення всіх додаткових предметів (дерев, чагарників, каменів) для приготування чистого місця для будівництва.
  2. Вибір місця для фундаменту: проводиться геодезне обстеження сайту для визначення найкращого місця для будівництва, з урахуванням рельєфних та ґрунтових особливостей.
  3. Розробка проекту: Залежно від ваших побажань, архітектори та інженери створюють індивідуальний проект деревини з дерева. Проект враховує всі особливості землі, бажаного розміру та конфігурації будівлі, системи опалення, водопостачання та електроенергії.

Проект будинку передбачає використання дерев’яної смуги для стін, стельової конструкції та стелі, а також легких колод, що гарантує надійність та екологічність.

Підготовка матеріалів та виготовлення зрубу

Після затвердження проекту та підготовки сайту ви можете перейти до виготовлення матеріалів для будівництва:

  1. Вибір та прикраса деревини для виготовлення колоди використовує промінь, оброблений за допомогою спеціальної технології. Деревина попередньо обробляє, щоб уникнути розпаду та впливу шкідників. Це дозволяє створити дерев’яний будинок на замовлення, який буде довговічним і довговічним.
  2. Набори стін складаються з журналу салону, який забезпечує високу теплоізоляцію та природну вентиляцію. Кожен елемент ретельно підбирається та обробляється для забезпечення точності та точності під час складання.
  3. Підготовка матеріалів для даху та статі: Для будівництва даху використовуються крокви, виготовлені з міцної деревини, а також стельові промені, що забезпечують стабільність та довговічність будівлі.

Покладання фундаменту та конструкція стін

Після того, як матеріали готуються, починається етап спорудження фундаменту та стін:

  1. Закладка на основі: Для дерев’яного будинку з променя підходить стовп або смуга фундаменту, залежно від типу ґрунту та розміру будинку. Фонд виготовлений із залізобетону, що гарантує надійність та стабільність структури.
  2. Будівництво стін: Після встановлення фундаменту починається встановлення стін. Набори стін із легкого розрізання збираються вручну. Кожна коронка (рівень дерев’яної стіни) складається з декількох барів, з'єднаних за допомогою спеціальних дерев’яних вишивок, а між ними прокладається мохо.
  3. Встановлення вікон та дверей: Встановлення вікон та дверей – важливий етап у будівництві.

Обробка та внутрішня робота

Після будівництва стін та даху починається етап прикраси та внутрішньої роботи, що включає:

  1. Шліфування та фарбування: Для надання стінам естетичного вигляду, їх шліфують та фарбують, використовуючи спеціальні антисептичні та декоративні покриття. Це не тільки покращує зовнішній вигляд будинку, але й надає додаткового захисту від вологи та грибка.
  2. Монтаж електрики та сантехніки: встановлення електричних проводок, вимикачів, розеток, а також монтаж сантехнічних систем (водопостачання, каналізація) – це етап, що дозволяє забезпечити комфорт та зручність проживання у дерев'яному будинку.
  3. Встановлення міжповерхової сходи: Для мульти -сторічних будівель, таких як Project 48H, необхідно встановити міждружні сходи. Це може бути дерев’яна або металева сходи, залежно від вашого смаку.
  4. Оздоблюючі підлоги та стелі: Останній крок – покрити підлогу та стелю. Для підлоги використовуються натуральні матеріали, такі як дерево, лінолеум або плитка. Стелі закінчуються за допомогою спеціальних матеріалів для створення естетичного типу.

Завершення та доставка об'єкта

Після завершення вся роботи будинку перевіряється на відповідність проекту та технічних вимог. Сюди входить перевірка всіх комунікацій, установки, а також зовнішність та якість обробки. Коли всі етапи завершені, будинок орендується замовнику.

Замовлення повороту для будинку з повороту

Замовлення будинку під ключ в Екобуді – це гарантія високої якості роботи, використовуючи лише екологічно чисті та сильні матеріали, а також повну готовність об'єкта для життя. Вся робота проводиться з урахуванням індивідуальних вимог замовника, що дозволяє створити будинок, який відповідає всім вимогам зручності та функціональності.

Виробництво дерев’яних лісів під ключ вимагає досвіду та професіоналізму. Дерев’яний будинок на замовлення здійснюється відповідно до проекту, який дозволяє замовнику отримати бажану зону, кількість кімнат та інших характеристик. Вибір дерев’яних будинків із журналу розрізання журналу дозволяє отримати не лише екологічно чистий, але й стильний предмет, який органічно вписується в природне середовище.

Загальна вартість та терміни

Ціна будівництва будинку під ключ залежить від багатьох факторів, таких як розмір будинку, складність проекту, матеріали та додаткові послуги. Вартість може змінюватися, але в будь -якому випадку ви отримаєте відмінну якість та довговічність за доступною ціною.

Будинок від променя на замовлення буде побудований в оптимальний час від 6 до 7 місяців для будівництва стінового набору. Крім того, слід враховувати час для внутрішньої роботи та встановлення інженерних комунікацій.