Проект 9B

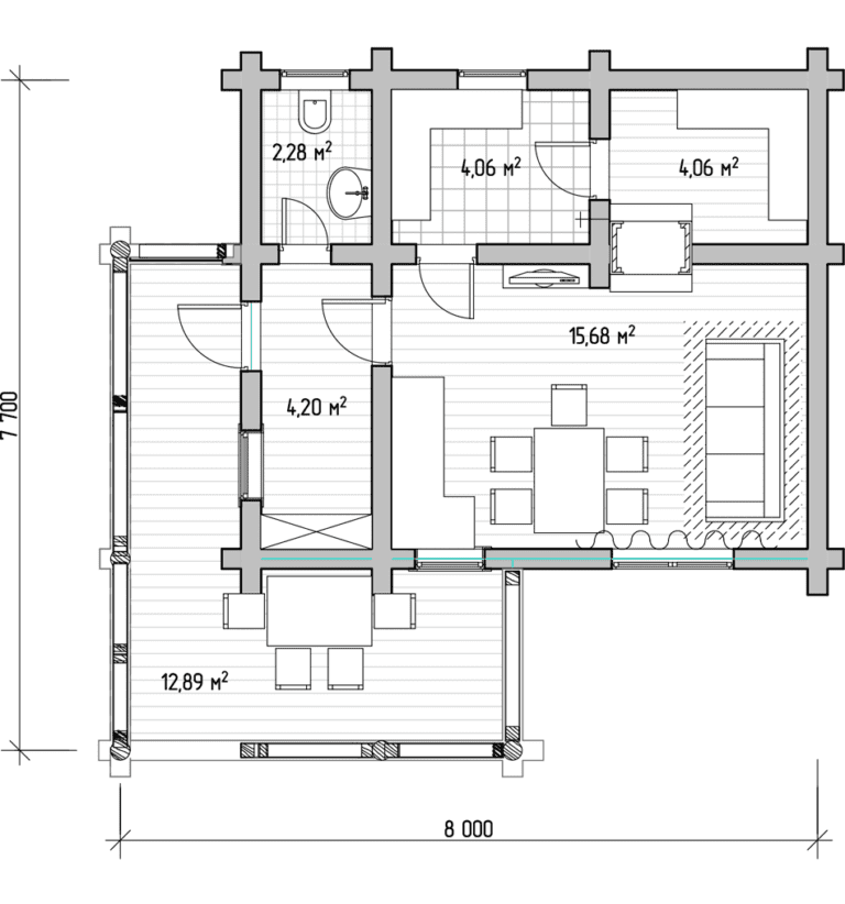
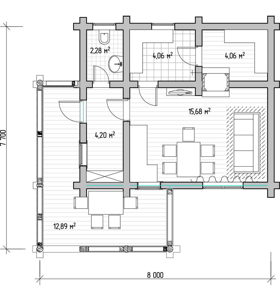
  • • Загальна площа (з верандами та балконами): 43 м2
  • • Площа приміщень: 31 м2
  • • Поверхів: 1
  • • Термін будівництва: 1-2 місяці
    (час будівництва стінового комплекту)


ПЛАНУВАННЯ

Комплектація

Процес будівництва з дерева відбувається у 2 етапи:

1.Безпосередньо сам зруб (стіновий комплект)

• Зруб котеджу або лазні зі струганої колоди діаметром від 260 мм до 320 мм.
• Силові конструкції: лаги, стельові балки.
• Виготовлення кроквяної системи
• Монтаж обрешітки
• Лаги, крокви, нижні вінці зрубу покриваються антисептиком.
• Вінці збираються на дерев'яних нагелях, між вінцями прокладається мох

2. Інші роботи по зрубу

• Часткове шліфування стін зрубу.
• Чистова підлога, стеля.
• Встановлення вікон, дверей зрубу.
• Пристрій між поверхових сходів зрубу.
• Фарбування зрубу (стіни, підлога, стеля).
• Сантехніка
• Електрика

БЕЗКОШТОВНА КОНСУЛЬТАЦІЯ

Проект 9B: Уникальный Дом из Колоды Ручной Рубки

Проект 9B от компании Ecobud представляет собой воплощение экологичного и комфортного жилья, созданного с использованием ручной рубки. Этот компактный дом из колоды ручной рубки идеально подходит для тех, кто стремится к гармонии с природой без потери современных удобств. Общая площадь дома, включая веранды и балконы, составляет 43 квадратных метра, а полезная площадь помещений – 31 квадратный метр. Одноэтажная планировка делает его доступным и удобным для всех возрастов, а срок постройки стенового комплекта – всего 1-2 месяца – позволяет быстро реализовать задуманное. Давайте детально разберем все аспекты этого проекта, от его характеристик до многоэтапного процесса строительства домов ручной рубки под ключ в Украине.

Каждый элемент дома разработан с учетом долговечности и эстетики. Экологически чистые материалы, используемые в строительстве, подчеркивают приверженность Ecobud принципам устойчивого развития. С более чем 120 успешными проектами по Украине и Европе, компания зарекомендовала себя как лидер в создании уникальных проектов будинків з колоди ручної рубки. Проект 9B – это не просто жилье, а пример того, как традиционная рубка дома сочетается с современными технологиями.

Общая Площадь и Планировка

Общая площадь проекта 9B в 43 квадратных метра включает жилые комнаты, веранды и балконы, что делает його ідеальним заміським будинком із дерева для отдыха или постоянного проживания. Полезная площадь в 31 квадратный метр распределена с учетом максимальной функциональности каждой зоны. Одноэтажная конструкция исключает необходимость в лестницах, что обеспечивает безопасность и удобство, особенно для семей с детьми или пожилых людей.

Кухня-столовая на 12,89 квадратных метра становится сердцем дома, где можно организовать семейные трапезы или принять гостей. Здесь помещается большой стол, стулья и современная техника, сохраняющая теплую атмосферу дерев’яного будинку. Спальня на 4,20 квадратных метра предлагает уютное пространство для отдыха, подходящее для одного человека или пары. Ванная комната на 2,28 квадратных метра оснащена сантехникой, душевой кабиной и системой вентиляции для комфортного использования. Две дополнительные комнаты по 4,06 квадратных метра каждая могут быть адаптированы под детские, рабочие кабинеты или гостевые зоны. Жилая зона на 15,68 квадратных метра с диваном и зоной отдыха создает идеальное место для релаксации.

Веранда, входящая в общую площадь, служит местом для летнего отдыха или утреннего кофе на свежем воздухе. Все размеры помещений рассчитаны с учетом баланса между практичностью и эстетикой. Ручна рубка, применяемая в строительстве стен, придает дому уникальный облик и долговечность, что делает його одним із кращих будинків з колоди ручної рубки в Україні. Такой подход позволяет адаптировать дом к любым климатическим условиям, что особенно важно для регионов с переменчивой погодой.

Срок Постройки: Эффективность и Скорость за 1-2 Месяца

Срок постройки стенового комплекта проекта 9B ограничен 1-2 месяцами, что делает його одним із найшвидших варіантів серед дерев’яних будинків під ключ. Этот период охватывает все этапы – от заготовки материалов до финальной сборки сруба з колоди ручної рубки. Така швидкість досягається завдяки злагодженій роботі команди Ecobud і попередній підготовці всіх компонентів. Рубання будинку починається з ретельного відбору колод, що гарантує високу якість і міцність.

Процесс строительства оптимизирован для минимизации времени без ущерба качеству. После завершения стенового комплекта можно сразу переходить к внутренней отделке и установке инженерных систем. Такий підхід ідеально підходить для тих, хто хоче замовити будинок із бруса і отримати його в найкоротші терміни. Виготовлення будинків із бруса на виробничих потужностях Ecobud дозволяє контролювати кожен етап, забезпечуючи надійність і довговічність. Цей короткий термін є значною перевагою для тих, хто планує невеликі будинки з бруса для відпочинку або постійного проживання.

Комплектация и Этапы Строительства: Детали Процесса

Строительство дома по проекту 9B делится на два основных этапа, каждый из которых требует профессионального подхода. Первый этап сосредоточен на создании стенового комплекта – фундамента любого будинку із колоди. Ручна рубка тут відіграє ключову роль, адже майстри Ecobud використовують стругані колоди діаметром від 260 до 320 міліметрів. Такий розмір забезпечує відмінну теплоізоляцію та міцність, що є вирішальним для будинків ручної рубки в Україні. Силові конструкції, такі як лаги, стельові балки та стійки, виготовляються з урахуванням максимальних навантажень, що робить будинок стійким до вітру, снігу та інших природних факторів.

Подготовка Материалов и Рубка Дома

Процесс начинается с отбора древесины, где выбираются только здоровые хвойные деревья, преимущественно сосна или ель, с минимальным количеством сучков. Колода ручної рубки обтесывается вручную с использованием традиционных топоров и стамесок, что придает каждому бревну уникальную форму и текстуру. Далее проводится первичная обработка, включая снятие коры и сортировку по диаметру. Рубка будинку з колоди виконується з використанням канадської чаші або російського замка – технік, які забезпечують щільне прилягання вінців і мінімізують тепловтрати. Ця фаза завершується маркуванням елементів, щоб полегшити подальший монтаж.

Сборка Стенового Комплекта

После подготовки материалов начинается сборка стенового комплекта на строительной площадке. Стропильна система формується з високоякісного бруса, який піддається попередній обробці антисептиком для захисту від вологи та комах. Обрешітка монтується з шагом, розрахованим для оптимального розподілу ваги покрівельного матеріалу. Лаги та нижні вінці додатково просочуються спеціальними складами, що підвищує їхню стійкість до гниття. Мох, прокладений між венцами, не только утепляет, но и регулирует влажность внутри стен, создавая естественный микроклимат. Цей процес рубання будинку підкреслює унікальність кожного зрубу з колоди ручної рубки, роблячи його витвором мистецтва.

Завершающие Работы и Интерьер

Второй этап включает завершающие работы, превращающие сруб в полноценный будинок із бруса недорого. Частична шліфовка стін зрубу виконується з використанням професійного обладнання, що дозволяє видалити нерівності та підкреслити природний малюнок дерева. Чистовий пол укладається з дощок товщиною не менше 30 мм, які піддаються попередній сушці, щоб уникнути деформацій. Стеля монтується з використанням вагонки або рейок, що створює естетичний вигляд і гарну звукоізоляцію. Установка вікон і дверей срубу передбачає використання енергоефективних двокамерних склопакетів і міцних дерев’яних рам, які гармоніюють із загальним дизайном.

Сантехнічні роботи включають прокладку труб для холодного та гарячого водопостачання, установку бойлера та сантехнічних приладів, таких як умивальник, туалет і душова кабіна. Електрика монтується з використанням мідного кабелю, розподільних щитків і сучасних вимикачів, що відповідають європейським стандартам безпеки. Покраска стін, пола і стелі виконується екологічними лаками та фарбами на водній основі, які підкреслюють текстуру дерева та захищають його від зовнішніх впливів. Цей етап завершується встановленням міжповерхової драбини (якщо потрібно) із міцного дуба або ясеня, що забезпечує безпеку та зручність.

Характеристики Материалов: Качество и Экология

Дом проекта 9B строится из натуральных материалов, что делает його одним із кращих дерев’яних будинків від виробника. Колода ручної рубки проходить строгий відбір, щоб забезпечити відсутність тріщин і дефектів. Брус під ключ виготовляється з хвойних порід, таких як сосна чи ялина, які славляться своєю міцністю та здатністю утримувати тепло. Товщина стін, що досягає 260-320 мм, забезпечує високу енергоефективність, знижуючи витрати на опалення навіть у холодні зимові місяці.

Антисептична обробка застосовується до всіх дерев’яних елементів, включаючи лаги, стропила та нижні вінці, щоб захистити їх від біологічного ураження. Мох, використаний як утеплювач, є природним матеріалом, який регулює вологість і запобігає утворенню цвілі. Вікна та двері виготовляються з ламінованого бруса, що підвищує їхню стійкість до деформацій. Ці характеристики роблять будинки з колоди ручної рубки в Україні ідеальним вибором для тих, хто цінує екологію та комфорт.

Преимущества Ручной Рубки: Традиции и Инновации

Ручна рубка – це мистецтво, яке робить будинки з колоди ручної рубки унікальними. Екологічність матеріалів забезпечує чисте повітря всередині приміщень, що корисно для здоров’я. Довговічність досягається завдяки ручному підгону кожного елемента, що мінімізує зазори та тепловтрати. Проекти будинків з колоди ручної рубки дозволяють створювати індивідуальні дизайни, які неможливо повторити в серійному виробництві.

В Україні дерев’яні будинки ручної рубки гармонійно вписуються в заміські ландшафти, відображаючи національні традиції. Монтаж будинку з бруса виконується швидко завдяки підготовці стенового комплекта, що економить час і кошти. Такий підхід робить будинки ручної рубки затребуваними серед тих, хто шукає дерев’яні сучасні будинки.

Современные Решения: Адаптация к Современности

Дерев’яні будинки під ключ від Ecobud адаптуються до сучасних потреб. Виготовлення будинків із бруса включає установку систем опалення, вентиляції та освітлення, що зберігає природну естетику. Будинки з дерева стають символом екологічного будівництва, приваблюючи інвесторів і приватних забудовників. Замовити будинок із бруса в Ecobud – це гарантія якості та індивідуального підходу.