Проект 5B

  • • Загальна площа (з верандами та балконами): 37 м2
  • • Площа приміщень: 29 м2
  • • Поверхів: 1
  • • Термін будівництва: 1-2 місяці
    (час будівництва стінового комплекту)


ПЛАНУВАННЯ

Комплектація

Процес будівництва з дерева відбувається у 2 етапи:

1.Безпосередньо сам зруб (стіновий комплект)

• Зруб котеджу або лазні зі струганої колоди діаметром від 260 мм до 320 мм.
• Силові конструкції: лаги, стельові балки.
• Виготовлення кроквяної системи
• Монтаж обрешітки
• Лаги, крокви, нижні вінці зрубу покриваються антисептиком.
• Вінці збираються на дерев'яних нагелях, між вінцями прокладається мох

2. Інші роботи по зрубу

• Часткове шліфування стін зрубу.
• Чистова підлога, стеля.
• Встановлення вікон, дверей зрубу.
• Пристрій між поверхових сходів зрубу.
• Фарбування зрубу (стіни, підлога, стеля).
• Сантехніка
• Електрика

БЕЗКОШТОВНА КОНСУЛЬТАЦІЯ

Проект 5B: Компактний Будинок з Колоди Ручної Рубки

Проект 5B є яскравим прикладом сучасного підходу до будівництва дерев’яних будинків в Україні, де акцент робиться на екологічності, компактності та функціональності. Цей одноповерховий будинок з колоди ручної рубки ідеально підходить для тих, хто мріє про недорогий дерев’яний будинок, що поєднує традиційні методи зручності з сучасними стандартами комфорту. Загальна площа з урахуванням веранд і балконів становить 37 квадратних метрів, тоді як площа приміщень – 29 квадратних метрів. Це робить його чудовим рішенням для невеликих сімей або як дачний варіант, де кожний квадратний метр використовується максимально ефективно.

Будівництво будинку з колоди під ключ в рамках цього проекту передбачає використання високоякісних матеріалів, таких як строгане бревно діаметром від 260 до 320 міліметрів. Ручна рубка забезпечує унікальну текстуру та довговічність конструкції, роблячи кожен будинок неповторним. Якщо ви плануєте побудувати будинок з бруса, то проект 5B пропонує баланс між вартістю та якістю, дозволяючи замовити будинок з бруса без зайвих витрат. Каталог дерев’яних будинків часто включає подібні моделі, але тут акцент на індивідуальному підході, де клієнт може адаптувати план під свої потреби.

Екологічно чисті матеріали – це основа виробництва дерев’яних будинків за цим проектом. Деревина обробляється антисептиками для захисту від вологи та шкідників, а венці збираються на дерев’яних нагелях з прокладкою моху між ними. Це не тільки підвищує теплоізоляцію, але й створює здорову атмосферу всередині. Вартість будинків з бруса варіюється, але проект 5B вирізняється доступністю, роблячи його привабливим для тих, хто шукає недорогі дерев’яні будинки. Будівництво дерев’яного будинку тут відбувається в два етапи, що дозволяє контролювати процес на кожному кроці.

Унікальність проекту полягає в його адаптивності до різних регіонів України – від Карпат до степів. Заміські будинки з дерева, як цей, стають все популярнішими через свою енергоефективність і естетичну привабливість. Проекти рубаних будинків з колоди часто включають елементи, що підкреслюють натуральність, і проект 5B не виняток. Він передбачає повну комплектацію, від силових конструкцій до фінішних робіт, забезпечуючи будівництво будинку з дерева під ключ без додаткових турбот для замовника.

Деталізація плану дозволяє врахувати всі аспекти: від фундаменту до даху. Виробництво будинків з бруса зосереджується на якості сировини, і тут використовується лише відбірна деревина. Якщо ви розглядаєте проекти брусових будинків, то цей варіант виділяється своєю компактністю, ідеальною для невеликих ділянок. Будівництво будинків з бруса стає простішим завдяки модульній структурі, де стіновий комплект готується заздалегідь.

Цей проект вже реалізовано в понад 120 об’єктах по Україні та Європі, що свідчить про надійність. Для тих, хто хоче замовити будинок з бруса, це можливість отримати персоналізований дизайн без переплат. Будинок з бруса не тільки красивий, але й практичний, з мінімальними витратами на опалення завдяки природним властивостям дерева.

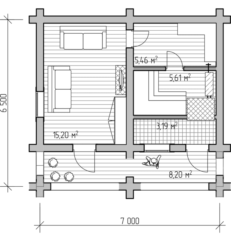
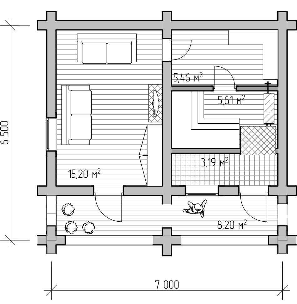
Розміри та Планування: Оптимізація Простору в Компактному Форматі

Розміри проекту 5B ретельно продумані для максимальної зручності. Загальна площа 37 м² включає веранди та балкони, які додають відкритого простору для відпочинку на свіжому повітрі. Площа приміщень 29 м² розподілена так, щоб забезпечити комфортне проживання: кухня, вітальня, спальня та санвузол розміщені компактно, але функціонально. Це ідеально для будівництва будинку з колоди, де земельні ділянки часто обмежені.

Веранди додають шарму, дозволяючи насолоджуватися краєвидами без виходу з дому. Балкони, хоч і невеликі, створюють додаткові зони для релаксу. У контексті будівництва дерев’яних будинків такий підхід економить ресурси, роблячи проект доступним. Колода ручної рубки діаметром 260-320 мм забезпечує міцність стін, які витримують кліматичні навантаження.

Планування враховує ергономіку: двері та вікна розміщені для оптимального освітлення та вентиляції. Це важливо для виробництва дерев’яних будинків, де натуральне світло підкреслює текстуру дерева. Недорогий дерев’яний будинок за цим проектом не поступається просторішим моделям у зручності, завдяки розумному зонуванню.

Деталі Площі: Як Кожний Метр Працює на Комфорт

При детальному розгляді площі приміщень 29 м² стає зрозуміло, що кожна зона оптимізована. Кухня інтегрована з вітальнею, створюючи відкритий простір для сімейних посиденьок. Спальня відокремлена для приватності, а санвузол компактний, але оснащений усім необхідним. У будівництві будинку з бруса в Україні такі рішення знижують витрати на матеріали.

Веранди площею 8 м² додають зовнішнього шарму, ідеально для барбекю чи ранкової кави. Балкони інтегруються з дахом, забезпечуючи тінь у спекотні дні. Проекти брусових будинків часто ігнорують такі деталі, але тут вони ключові для комфорту.

Термін Будівництва: Швидкість та Ефективність Процесу

Термін постройки стінового комплекту в проекті 5B становить 1-2 місяці, що робить його одним з найшвидших варіантів для будівництва будинку з дерева. Цей час включає підготовку матеріалів, рубку та збірку на ділянці. Ручна рубка, хоч і трудомістка, оптимізована завдяки досвіду майстрів, дозволяючи уникнути затримок.

Перший етап – створення стінового комплекту – займає основну частину часу, але завдяки заздалегідь підготовленим елементам процес прискорюється. Силові конструкції, як лаги та балки, виготовляються паралельно, забезпечуючи синхронізацію. У контексті будівництва будинків з бруса це означає, що клієнт отримує готовий об’єкт без тривалих очікувань.

Другий етап – прочі роботи – інтегрується плавно, з частковою шлифовкою стін та установкою елементів. Антисептик наноситься на ключові частини для довговічності. Якщо ви плануєте побудувати будинок з бруса, то такий графік дозволяє розпочати експлуатацію вже через кілька місяців.

Етапи Будівництва: Від Фундаменту до Фінішу

Процес розділений на два етапи для прозорості. Перший фокусується на срубі: строгане бревно рубиться вручну, венці фіксуються нагелями з мохом для ізоляції. Стропильна система та обрешетка готуються для даху, забезпечуючи міцність.

Другий етап включає фініш: шлифовка, установка підлоги, стелі, вікон та дверей. Лестниця, якщо потрібно, монтується з урахуванням дизайну. Покраска захищає поверхні, а сантехніка та електрика інтегруються професійно. Будівництво будинку з колоди під ключ таким чином стає безпроблемним.

Комплектація: Повний Набір для Готового Будинку

Комплектація проекту 5B охоплює все необхідне для повноцінного житла. Сруб з колоди ручної рубки формує основу, з діаметром бревна, що гарантує стабільність. Силові елементи, як лаги та балки, посилюють конструкцію, а стропильна система підтримує дах.

Антисептик захищає від біологічних загроз, а збірка на нагелях забезпечує екологічність. У другому етапі шлифовка надає гладкості, підлога та стеля – комфорту. Вікна та двері встановлюються з урахуванням ізоляції, лестниця – для зручності.

Покраска підкреслює натуральність, сантехніка та електрика роблять будинок сучасним. Для тих, хто шукає каталог дерев’яних будинків, цей проект – зразок повної комплектації.

Переваги Матеріалів: Екологічність та Довговічність

Матеріали в проекті 5B – це відбірна деревина, оброблена для максимальної міцності. Ручна рубка створює унікальну поверхню, стійку до деформацій. Мох як ізолятор натуральний і ефективний, антисептик – безпечний.

У виробництві будинків з бруса в Україні такі деталі забезпечують термін служби понад 50 років. Вартість будинків з бруса виправдана якістю, роблячи проект доступним.

Фінішні Роботи: Деталі, Що Роблять Будинок Затишним

Фініш включає шлифовку для естетики, установку елементів для функціональності. Покраска захищає та прикрашає, сантехніка – сучасна, електрика – безпечна. Це завершує будівництво дерев’яного будинку на високому рівні.

Якщо ви зацікавлені, звертайтеся до Ecobud для консультації – наша компанія пропонує повний цикл послуг. Детальніше про проекти рубаних будинків з колоди можна дізнатися на ecobud.org.ua, де представлено портфоліо.