Проект 54H

  • • Загальна площа (з верандами та балконами): 224 м2
  • • Площа приміщень: 202 м2
  • • Поверхів: 2
  • • Термін будівництва: 6-7 місяців
    (час будівництва стінового комплекту)


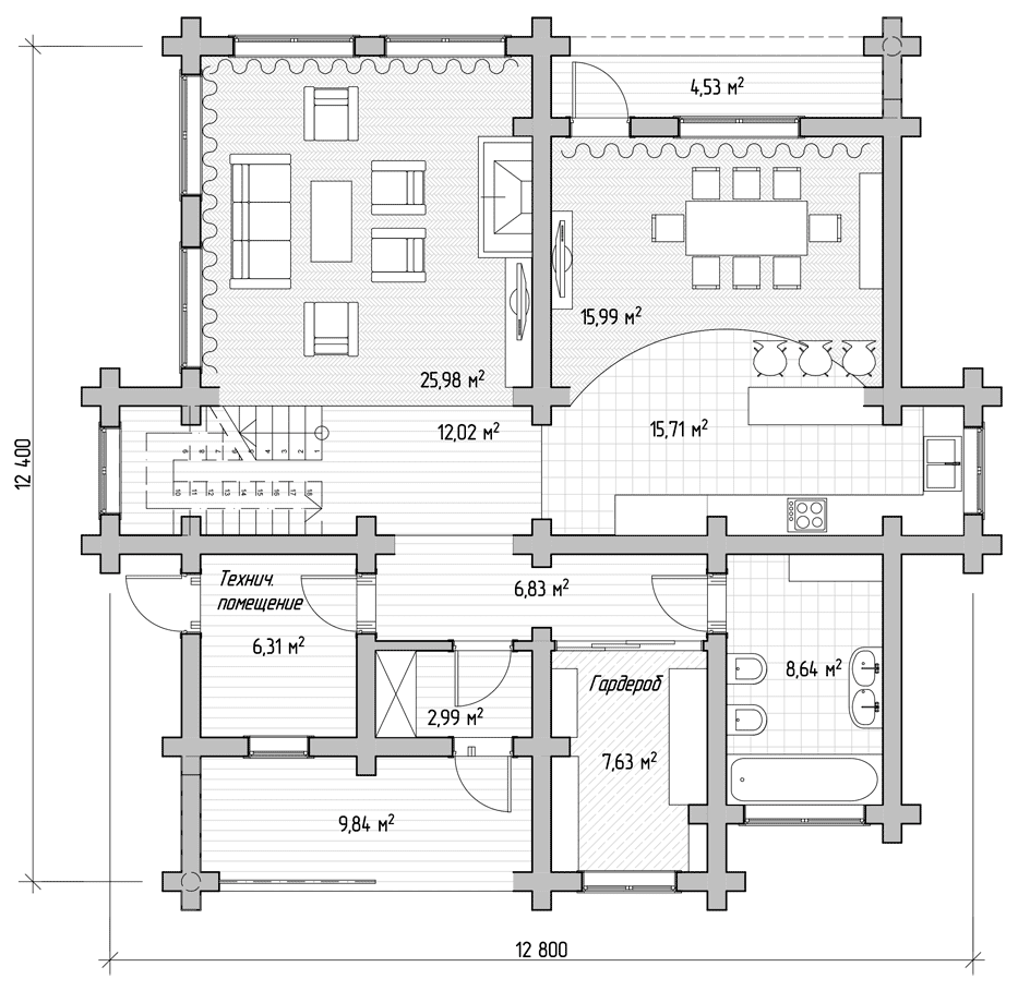
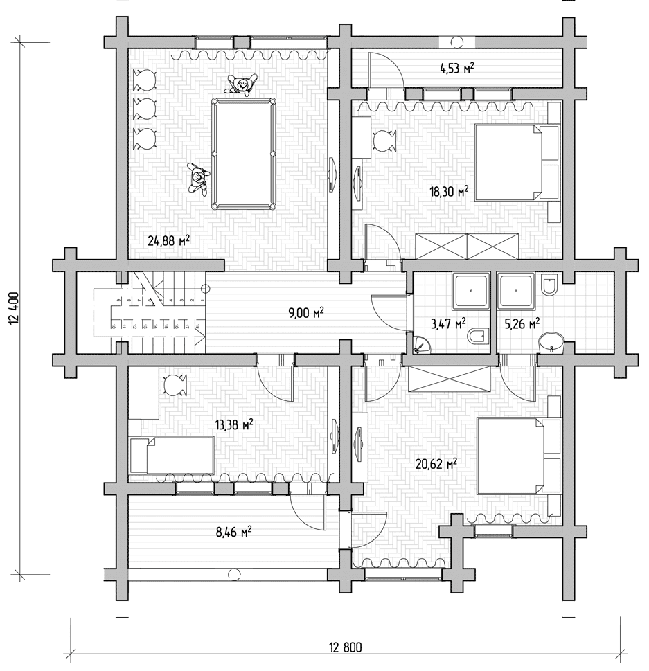
ПЛАН ПЕРШОГО ПОВЕРХУ

ПЛАН ДРУГОГО ПОВЕРХУ

Комплектація

Процес будівництва з дерева відбувається у 2 етапи:

1.Безпосередньо сам зруб (стіновий комплект)

• Зруб котеджу або лазні зі струганої колоди діаметром від 260 мм до 320 мм.
• Силові конструкції: лаги, стельові балки.
• Виготовлення кроквяної системи
• Монтаж обрешітки
• Лаги, крокви, нижні вінці зрубу покриваються антисептиком.
• Вінці збираються на дерев'яних нагелях, між вінцями прокладається мох

2. Інші роботи по зрубу

• Часткове шліфування стін зрубу.
• Чистова підлога, стеля.
• Встановлення вікон, дверей зрубу.
• Пристрій між поверхових сходів зрубу.
• Фарбування зрубу (стіни, підлога, стеля).
• Сантехніка
• Електрика

БЕЗКОШТОВНА КОНСУЛЬТАЦІЯ

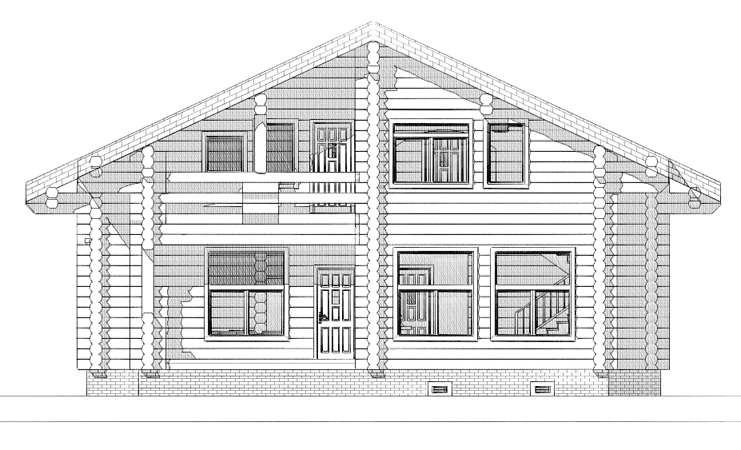
Будівництво будинків з колоди ручної рубки за проектом 54H

Будівництво дерев'яного будинку з бруса за проектом 54H є ідеальним варіантом для тих, хто прагне жити в екологічному та комфортному середовищі. Цей проект передбачає двоповерховий будинок загальною площею 224 м², зокрема 202 м² житлової площі. Він створений з урахуванням усіх сучасних вимог до будівництва дерев'яних будинків, включаючи найкращі матеріали та технології, які гарантують високу міцність, теплоізоляцію та довговічність будови.

Проект 54H пропонує зручний розподіл приміщень, включаючи веранди та балкони, що додають привабливості та дозволяють насолоджуватися природою. Для тих, хто бажає побудувати будинок із бруса під ключ з комунікаціями, цей проект є оптимальним рішенням, оскільки ми передбачаємо вартість всіх необхідних робіт, включаючи встановлення вікон, дверей, монтаж сантехнічних і електричних систем.

Перший етап будівництва: створення сруба та основних конструкцій

На першому етапі будівництва за проектом 54H відбувається виготовлення сруба — основної конструкції будинку. Для цього використовуються колоди ручної рубки діаметром від 260 мм до 320 мм, що надає будинку необхідну міцність і чудову теплоізоляцію. Силові конструкції, включаючи лаги та стельові балки, виготовляються з високоякісних матеріалів, що дозволяють зберегти будинок стійким до різних навантажень та змін погодних умов.

Під час цього етапу також відбувається виготовлення та монтаж стропильних систем, що є важливою частиною даху. Стропила виконуються з міцного дерева та забезпечують надійний захист від негоди. Після цього монтується обрешітка, що служить основою для покрівлі. Крім того, усі нижні венці, лаги та стропила покриваються антисептичними засобами для захисту від гниття і вологи, що значно подовжує термін служби будівлі.

Щоб забезпечити герметичність і теплоізоляцію, між венцями сруба прокладається мох, а самі венці з'єднуються за допомогою дерев'яних нагелів. Така конструкція є дуже міцною і стійкою до зовнішніх впливів. Всі ці роботи виконуються вручну, що дозволяє нам забезпечити високу точність і якість кожного етапу. Цей етап будівництва вимагає особливої уваги до деталей, оскільки від правильно зведеного сруба залежить стабільність і довговічність усієї будівлі.

Другий етап будівництва: внутрішні роботи та підключення комунікацій

Другий етап будівництва включає в себе всі роботи, пов'язані з внутрішнім оздобленням і підключенням комунікацій. Після завершення зведення сруба ми приступаємо до виконання наступних робіт: часткова шліфовка стін, покраска, встановлення вікон і дверей, а також монтаж міжповерхової сходової конструкції.

Для внутрішнього оздоблення використовується високоякісні фарби і лакофарбові матеріали, які не тільки підкреслюють природну красу дерева, але й захищають його від зовнішніх впливів. Часткова шліфовка стін сруба допомагає досягти гладкої та естетично привабливої поверхні, що додає будинку комфорту і затишку.

Установка вікон та дверей є важливим етапом цього процесу. Ми використовуємо віконні та дверні конструкції, виготовлені з матеріалів, які ідеально поєднуються з дерев'яним будинком і забезпечують високу енергозбережувальну ефективність. Кожен етап установки виконується з максимальним дотриманням стандартів якості, що дозволяє уникнути будь-яких проблем з герметичністю та теплоізоляцією.

Установка міжповерхових сходів також є важливим етапом, оскільки вони не тільки забезпечують безпеку, але й додають елегантності інтер'єру. Всі сходи виготовляються з дерева та підходять до стилю будинку. Після виконання оздоблювальних робіт на стінах, стелі та підлозі, ми переходимо до підключення комунікацій, включаючи електрику та сантехніку.

Прокладання електричних мереж, встановлення розеток, вимикачів та інших елементів є важливою частиною цього етапу. Ми також монтуємо сантехнічні системи, включаючи водопостачання, каналізацію та опалення. Це дозволяє створити повноцінне житло, готове до експлуатації. Останнім кроком є покраска всіх внутрішніх поверхонь, що додає завершеності вигляду і захищає деревину.

Переваги дерев'яного будинку з бруса під ключ

Побудова будинку з дерева під ключ є чудовим варіантом для тих, хто шукає надійне та екологічне житло. Дерев'яний будинок на замовлення може бути виготовлений відповідно до вашого проекту, що дозволяє врахувати всі побажання та вимоги щодо розміщення кімнат, розмірів і функціональності приміщень. Ви можете замовити будинок із бруса під ключ, і отримати готову до експлуатації будову з усіма комунікаціями.

Дерев'яні будинки з колоди ручної рубки, такі як проект 54H, відрізняються не тільки високою якістю і міцністю, але й чудовими теплоізоляційними властивостями. Це особливо важливо для комфортного проживання в будь-яку пору року. Вибір таких будинків дозволяє створити затишну атмосферу, де природа і комфорт поєднуються в ідеальному балансі.

Будівництво дерев'яного будинку з бруса — це надійний і економічно вигідний варіант, оскільки такі будинки не потребують значних витрат на обслуговування та енергоспоживання. Проект 54H дозволяє побудувати дерев'яний будинок за розумною ціною, без шкоди для якості і збереження естетичної привабливості.