Проект 42H

  • • Загальна площа (з верандами та балконами): 168 м2
  • • Площа приміщень: 150 м2
  • • Поверхів: 2
  • • Термін будівництва: 5-6 місяців
    (час будівництва стінового комплекту)


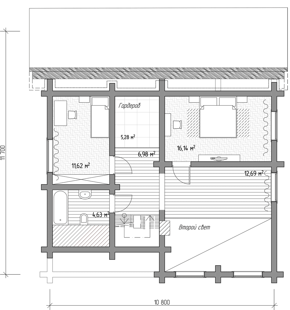
ПЛАН ПЕРШОГО ПОВЕРХУ

ПЛАН ДРУГОГО ПОВЕРХУ

Комплектація

Процес будівництва з дерева відбувається у 2 етапи:

1.Безпосередньо сам зруб (стіновий комплект)

• Зруб котеджу або лазні зі струганої колоди діаметром від 260 мм до 320 мм.
• Силові конструкції: лаги, стельові балки.
• Виготовлення кроквяної системи
• Монтаж обрешітки
• Лаги, крокви, нижні вінці зрубу покриваються антисептиком.
• Вінці збираються на дерев'яних нагелях, між вінцями прокладається мох

2. Інші роботи по зрубу

• Часткове шліфування стін зрубу.
• Чистова підлога, стеля.
• Встановлення вікон, дверей зрубу.
• Пристрій між поверхових сходів зрубу.
• Фарбування зрубу (стіни, підлога, стеля).
• Сантехніка
• Електрика

БЕЗКОШТОВНА КОНСУЛЬТАЦІЯ

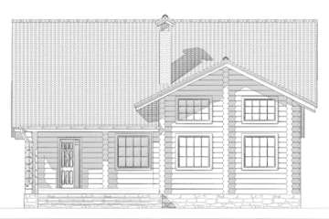
Проект будинку 42H: дерев'яний будинок із колоди під ключ

Проект 42H – це сучасний двоповерховий дерев’яний будинок із зрубу ручної рубки, площею 168 м² (разом із верандами та балконами). Будинок створений для комфортного життя у гармонії з природою. Використання натурального дерева робить цей проект не лише екологічним, а й естетично привабливим, забезпечуючи тепло і затишок у будь-яку пору року.

Цей будинок є прекрасним прикладом сучасної архітектури з використанням традиційних матеріалів. Дерев’яний будинок на замовлення може бути адаптований під ваші потреби завдяки широким можливостям проектування. Дерево, як головний матеріал, не лише додає природної краси, а й створює здоровий мікроклімат у приміщенні.

Якщо ви вирішили замовити будинок із бруса під ключ, компанія Ecobud забезпечить вас повним спектром послуг: від розробки проекту до здачі готового будинку. Ми спеціалізуємося на виготовленні дерев’яних будинків і реалізуємо проекти з використанням ручної рубки, що гарантує високу якість та довговічність конструкції.

Технічні характеристики проекту 42H: деталі, які мають значення

Загальні параметри:

  • Загальна площа: 168 м² (з верандами та балконами).
  • Площа приміщень: 150 м².
  • Кількість поверхів: 2.
  • Матеріал: зруб із колоди діаметром від 260 мм до 320 мм.
  • Термін будівництва: 5–6 місяців (для стінового комплекту).

Всі наші будинки з дерева під ключ розробляються з урахуванням сучасних стандартів енергоефективності та екологічності. Дерев’яні будинки ручної рубки, виготовлені з колоди, мають високу теплоізоляцію та забезпечують комфорт у будь-яку пору року.

Кожен проект будинку з дерева індивідуальний і може бути адаптований під ваші потреби. Ми пропонуємо замовити проект приватного будинку з бруса, включаючи будинок із бруса під ключ із комунікаціями.

Етапи будівництва дерев’яного будинку 42H

Перший етап будівництва дерев'яного будинку 42H є надзвичайно важливим, оскільки саме від якісного виготовлення стінового комплекту залежить довговічність і надійність майбутнього житла. Будинки з дерева ручної рубки відзначаються екологічністю, естетикою та теплом, і цей етап вимагає ретельного підходу.

На початку ми проводимо заготівлю колод. Для будівництва використовуємо деревину високої якості, заготовлену в екологічно чистих районах. Переважно це хвойні породи, такі як сосна або ялина, що відрізняються своєю міцністю та природними властивостями, які сприяють збереженню тепла.

Далі відбувається складання зрубу на дерев’яних нагелях. Цей метод забезпечує стійкість конструкції, зменшує ризик деформацій та сприяє довговічності будинку. Кожен вінок зрубу ретельно підганяється, а між вінцями прокладається натуральний утеплювач, такий як мох. Це рішення забезпечує відмінну герметичність і зберігає природну циркуляцію повітря всередині будівлі.

Особливу увагу приділяємо обробці колод антисептиками. Цей етап захищає деревину від вологи, грибків, комах та інших негативних впливів. Антисептична обробка є важливою складовою, яка дозволяє продовжити термін служби будинку на десятиліття.

На цьому ж етапі виконується монтаж лагів, стельових балок і кроквяної системи. Лаги та балки забезпечують конструктивну стабільність будівлі, а кроквяна система є основою для покрівлі. Для довговічності всі елементи конструкції також покриваються захисними засобами.

Будинок із колоди ручної рубки – це не лише будівельна конструкція, але й мистецтво. Кожна колода обробляється вручну, зберігаючи природну текстуру та унікальність дерева. Це надає будинку особливого шарму та неповторності, створюючи атмосферу затишку і гармонії.

Фінальні роботи

Після завершення складання стінового комплекту розпочинається другий етап будівництва, який передбачає виконання внутрішніх і зовнішніх робіт для забезпечення комфортного проживання в будинку.

Спершу проводиться шліфування стін. Цей процес дозволяє надати деревині естетичного вигляду та підготувати її до подальшого фарбування або обробки. Шліфування може бути як частковим, так і повним, залежно від побажань замовника.

Далі ми встановлюємо вікна і двері. Вони підбираються з урахуванням дизайну будинку та енергоефективності. Вікна забезпечують природне освітлення і збереження тепла, а двері виконуються з масиву дерева, щоб гармонійно доповнювати зовнішній вигляд зрубу.

Наступним кроком є монтаж міжповерхових сходів. Вони виготовляються з дерева, що дозволяє створити єдину стилістику інтер’єру. Сходи є не лише функціональним, але й декоративним елементом, який додає затишку та гармонії у будинок.

Після цього встановлюються інженерні комунікації, такі як електрика та сантехніка. Всі роботи виконуються з урахуванням сучасних стандартів безпеки та комфорту. Ми інтегруємо інноваційні рішення, які дозволяють зменшити витрати на енергію та підвищити зручність експлуатації будинку.

Завершальним етапом є фарбування стін, підлоги та стелі. Для цього використовуються спеціальні екологічні фарби, які зберігають природну текстуру дерева та захищають його від зовнішніх впливів.

Кожна деталь продумана до дрібниць, щоб забезпечити найвищий рівень комфорту. Замовити будинок із бруса під ключ означає отримати готове рішення, яке задовольнить усі ваші потреби та очікування.

Додаткові послуги для будинків із колоди ручної рубки

Наша компанія пропонує повний спектр послуг для дерев’яних будинків:

  • Проектування будинку за індивідуальними побажаннями.
  • Виготовлення меблів і декору з дерева для створення гармонійного інтер’єру.
  • Ландшафтний дизайн території навколо будинку.
  • Інтеграція сучасних систем розумного дому.

Обираючи будівництво дерев’яного будинку 42H, ви отримуєте екологічне, комфортне та естетичне житло, яке стане вашим родинним гніздом на довгі роки.